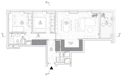
Mateřská škola Vimperk
architektonická soutěž 2023
autor: Štěpán Kubíček, Martina Buřičová, Lenka Levíčková, Daniel Rodríguez Pino
vizu: Miki Sluysar
ANOTACE NÁVRHU
Dřevostavba mateřské školy v přírodní krajině zahrady, důraz na ekologii a enviromentální řešení.
Koncept návrhu vychází z respektu k měřítku sousední obytné části města. Cílem je minimalizovat měřítko rozsáhlé stavby nové mateřské školy. Výsledkem je sestava jednotlivých třídních pavilonů se samostatnými střechami, které charakterem odpovídají okolní zástavbě.
Nejdůležitějším prostorem stavby jsou školní třídy. Chceme, aby děti každý den vnímaly prostorový zážitek z interiéru třídy. Prostor školy kultivuje děti, rádi bychom, aby děti chápali přirozenou tektoniku stavby, aby se učili architektuře prostým pobytem v kvalitní stavbě.
Navrhujeme přízemní stavbu, vyžadujeme pohodlný přístup z každé třídy na zahradu a celý provoz školy bezbariérový.
Propojení zahrady s interiérem školy je podstatou návrhu. Chceme, aby děti mohli ven a chodili ven co nejčastěji.
Celá zahrada je řešena jako zmenšená šumavská krajina. Přírodní zahrada je rozdělena na kultivovanou část s nízkým trávníkem okolo teras a zbylou divokou plochu luk a luhů. Zahrada je plná dětských herních prvků, altánů a drobných staveb, nabízí intimní zákoutí i společné prostory pro třídy i celou školu.
Sportovní klub Zlíchov
studie 2022
autor: Štěpán Kubíček, Martina Buřičová
vizu: Miki Sluysar
ANOTACE NÁVRHU
Novostavba sportovního klubu a venkovního bazénu. Na západní části zahrady vznikne sportovní parkgolfové hřiště, v blízkosti velkého fotbalového hřiště na východní straně venkovní posilovna v rozcvičovacím prostoru sportovců.
Jednoduchý obdélníkový objekt využívající terénní převýšení na pozemku. Objekt je umístěn ve svahu: pod terén zapuštěný suterén na úrovni příjezdové komunikace je prostým betonovým kvádrem, a slouží jako garáž pro návštěvníky. V přízemí, které je výškově osazené v úrovni rovinaté části pozemku je navržen dřevěný odlehčený objem samotného sportovního klubu. Klub má plochou zelenou střechu s extenzivní a intenzivní zelení, snaží se maximálně splynout s okolím, zapadnout do krajiny. Barevnost je dána použitými materiály. „Sokl“ stavby je hrubý, betonový, vrchní stavba je dřevěná, odlehčená.
GALERIE PERLOU / kulturně kreativní centrum Galerie Perlou - galerie současného umění s odkazem na textilní historii města Ústí nad Orlicí
užší jednofázová soutěž září 2022 - 2. zvýšená cena
autor: Martina Buřičová, Štěpán Kubíček
spolupráce: Anna Reidlová, Tomáš Prokop
grafický návrh loga: Anna Ali Brejšová, Graphiq, Design
konzultace v oblasti kreativní technologie: Jan Hrdlička, Adam Špinka, 3Dsense
vizualizace: Miki Sluysar
Anotace:
Nová Galerie v prostorách bývalé centrální části textilního areálu Perla 01. Revitalizace průmyslového brownfieldu na živé kulturní centrum města Ústí nad Orlicí.
Vzkříšení spícího místa uprostřed města, zapojení rekonstruovaného areálu s novou funkcí do měnícího se veřejného prostoru centrální části města.
Smysluplné a ekologické řešení konverze nevyužité stavby na novou, městotvornou instituci. Je zachován Genius Loci, podstatným principem návrhu je maximální využití možností a potenciálu historických budov. Odhalení a zdůraznění původní silné kvality a krásy průmyslového dědictví.
Prosvětlení a uvolnění parteru objektu je definicí nové galerie jako otevřené veřejné instituce.
…
Areál Perla je součástí širšího centra města Ústí nad Orlicí. Předmětem soutěže je návrh revitalizace skupiny budov, bývalé kotelny, rozvodny a navazujících administrativních křídel na živou veřejnou městskou instituci – městskou galerii s názvem Kulturně kreativní centrum GALERIE PERLOU.
Historické průmyslové objekty jsou zachovaným, nejstarším jádrem bývalého velkolepého průmyslového areálu. Areál přestal fungovat po ukončení textilní výroby ve druhé polovině devadesátých let a od té doby stál nevyužívaný a chátral.
V roce 2014 proběhla architektonická soutěž, která definovala kompletní přestavbu celého průmyslového areálu. Dnes již, na podkladě výsledků této soutěže, stojí nový objekt - Dům dětí a mládeže Duha a je dokončována novostavba sousedního objektu Vital Komplex - rehabilitačního a relaxační centra. Před objektem Domu dětí a mládeže Duha vzniklo na ulici 17. Listopadu náměstí, které čeká na dokončení a oživení své západní fronty.
Zapojení rekonstruovaného areálu do veřejného prostoru centra města je podstatnou podmínkou pro fungující městskou Galerii. Návrh na tuto okolnost klade zásadní důraz. Okolí je plné důležitých veřejných staveb a nová Galerie a kavárna doplní centrum o novou kulturní funkci. Změna charakteru ulice 17. Listopadu je podle našeho názoru součástí celé přeměny, nová forma zklidněné komunikace musí propojit nedaleké historické jádro a rozvojovou veřejnou plochu bývalého areálu Perla.
Respektujeme a zdůrazňujeme nové náměstí před Domem dětí a mládeže Duha. Tento prostor je nástupní a rozptylovou plochou návštěvníků Galerie Perlou. Živý parter objektu do náměstí je artikulován návrhem otevřené prosklené fasády vstupního průčelí galerie a vydlážděným předprostorem s pobytovými schody. Roh náměstí je zdůrazněn nárožním akcentem nové střešní koruny a hlavním vstupem do Galerie. Kavárna v jižním křídle areálu galerie zároveň oživí ulici 17. Listopadu.
Poloveřejný prostor vnitřního dvora pod komínem – zahrádka kavárny, venkovní amfiteátr letního kina, tvoří venkovní prostor pro akce spojené s životem galerie. Nový materiál dlažby zpevněné plochy kreslí na zemi hranici mezi plochou nádvoří galerie a ostatním dvorem. Nádvoří je doplněno osazenými stromy. Tento venkovní prostor je doplněn polosoukromou terasou na střeše kotelny.
Svatební síň pro Prahu 5
dvoufázová soutěž 2022
autor: Štěpán Kubíček, Martina Buřičová
spolupráce: Anna Lochmannová
konzultace: Eva Wagnerová
vizualizace: MIki Sluysar
Akropole městské části Prahy 5 - stávající krásný park završený novou svatební síní.
Důstojná, reprezentativní, klasická architektura, zároveň současná, elegantní a subtilní forma.
Řád kamenného objektu obklopený uvolněným zeleným parkem.
Otevřený, vstřícný pavilon v zahradě s působivými výhledy na panoramata Prahy.
Místo pro důležité obřady i běžná setkání, prostor pro svátky i odpočinek a kulturu.
…
_Definujeme středobod již existujícího parku, nejvyšší centrální místo. Vytváříme hlavní pobytový prostor parku a jeho okolí. Upravujeme vztah mezi ulicí Kobrovou a parkem, definujeme nový charakter severního vstupu do parku.
_Architektura Svatební síně je důstojná, klasická, odkazující na ikonické příklady chrámových staveb. Navržena rigidní kompozice ortogonálních čtverců – šachovnice, na které se odehrávají zásadní obřady lidských životů.
_Do základního půdorysu čtvercového gridu jsou vloženy servisní objemy hranolů se zázemím, které čtverec rozdělují na jednotlivé funkční celky. Celkové řešení graduje ve velkorysém prostoru hlavního sálu.
_Odkaz Pieta Mondriana, Parthenónu athénské Akropolis, Barcelonského pavilonu Miese van der Rohe.
_Podstatnou součástí architektury objektu jsou venkovní zastřešené ochozy, které obklopují atrium s vodním a uměleckým prvkem. Tato kolonáda s pravidelným rytmem sloupořadí, společně s okolní parkovou úpravou vytvářejí nové centrum parku.
_Atrium s vodním uměleckým prvkem je podstatnou součástí návrhu. Zvuk vody přinese do místa atmosféru uklidnění.
Společensko-kulturní centrum “SOKEC” Hrušovany u Brna
soutěž 2016, 1.místo
realizace 2012, 2022
Stavba Jihomoravského kraje 2021 - 2.místo, kategorie “Stavby občanské vybavenosti”
Česká cena za architekturu 2023 - cena Ministerstva pro místní rozvoj
Nominace Archdaily award “Building of the year 2024”
autor: Štěpán Kubíček, Martina Buřičová, Jonáš Krýzl, Jan Novotný
spolupráce: Lenka Levíčková, Tereza Dejdarová, Václav Pošmourný
fotograf: Tomáš Slavík
stavba: Navláčil stavební firma s.r.o., Zlín
stavbyvedoucí: Jakub Noha
facebooková stránka SOKEC: https://www.facebook.com/Sokec.hr/
…
Společensko kulturní centrum obce.
_Kulturní dům vnímáme jako důležitý kvalitní společenský fragment obce, který nabízí mnohem víc, než se čeká.
_Nachází se v historickém jádru obce, na místě bývalé sokolovny, a tvoří společně se sousedícím obecním úřadem, školou a školkou autentické živé centrum. Jeho umístění, charakter i funkce v rámci obce jsou velmi důležité a je třeba je zachovat, podpořit a aktualizovat v kontextu dnešních doby a jejích potřeb.
_Návrh vychází z jasně definované urbanistické struktury obce, do které se zapojuje. V maximální možné míře respektuje, renovuje a využívá historickou venkovní zahradu se sportovní víceúčelovou plochou a krásnými vzrostlými stromy.
_Součástí projektu je také komplexní úprava prostoru Masarykovy ulice . Mezi Sokecem a školou tak vzniká zklidněný, bezpečný předprostor, nádvoří, které podporuje význam tohoto důležitého místa v rámci obce a její komunity.
_Sál, hospoda, zahrada, hřiště - „oáza“ sloužící ke společnému setkávání všech občanů obce, po celý rok.
_Těžištěm SOKECU je víceúčelový sál, na něj navazují ostatní provozy: restaurace / hospoda, malé sály pro volnočasové aktivity a veškeré zázemí, zahrada, klub pro mladé a klub pro seniory.
V přístupu u funkčně provozního řešení je pro nás důležitá kompaktnost. Projevujeme ji otevřeností a čitelností prostor. Nechceme vzbuzovat zmatenost nýbrž jasnou orientaci.
_Provozní řešení vychází ze stávajícího stavu, zjednodušuje, pročišťuje a doplňuje. Podstatnou premisou návrhu je úzký vztah tří hlavních prostorů sálu, restaurace, zahrady. K propojení dochází jednoduše. Otevřením dveří spojujeme prostory do jednoho velkolepého celku. Důležitým pojítkem je vestibul, který spojuje ulici se zahradou a je hlavní osou domu, ze které pramení jednotlivé provozy.
Počet funkčních jednotek – jedná se o tři samostatné objekty:
_SOKEC je rozdělen na tři základní funkční jednotky:
Hlavní sál a vedlejší sály v patře včetně zázemí – max. cca 300 uživatelů.
Lokál – hospoda se zázemím pro cca 70 hostů.
Ubytovací jednotky – dvě studia pro příležitostné ubytování obě pro dvě osoby.
_SKLAD – objekt je rozdělen na jednotlivé skladové místnosti, součástí objektu je zázemí dvora, které může být využíváno jako prostor pro spolkovou činnost pro cca 20 uživatelů.
_KLUBOVNA - Hudební zkušebna – klub je určena pro zkoušky hudební produkce místních hudebních skupin o 4-10 členech.
Půdní vestavba Korunní, Praha - Vinohrady
realizace: interiér dokončen 2020
autor: Štěpán Kubíček, Martina Buřičová
spolupráce: Jiří Kolomazník, Lenka Levíčková
foto, video: Andrea Thiel Lhotáková
Půda nebyla využívána, zadáním byl prostorově a dispozičně velkorysý byt se zázemím a terasou. Uliční polovina krovu byla rekonstruována a zachována viditelná uvnitř interiéru, do střešní roviny jsme doplnili čtyři dvojice střešních oken. Severní polovina střechy byla zvednuta jednopodlažní nástavbou a vikýřem. Vzniklo tak šesté částečné podlaží.
Nominace Archdaily award “Building of the year 2022”
objekt B, areál Pokovářská Praha 9 - Vysočany
realizace duben 2020
foto Andrea Thiel Lhotáková
Cena starosty městské části Praha 9 - za nejkvalitnější a nejprospěšnější soubory veřejných staveb ku prospěchu obščanů a návštěvníků městské části Praha 9 v letech 1992 - 2022 / za systematickou etapovou výstavbu a konverzi Areálu Podkovářská / Tomáš Portlík, starosta, 2022
Finalista GPA-NCA 2021
Nová náves BaŠť s budovou základní školy
architektonická soutěž 2020 / odměna
autor: Štěpán Kubíček, Martina Buřičová
vizualizace: Viktorie Dostálová
sportovní hala Nová Paka
soutěž 2020
autor: Štěpán Kubíček, Martina Buřičová, Lenka Levíčková
vizualizace: dousek-záborský.com
Nová základní škola Komořany
architektonická soutěž 2021 / užší soutěž
autor: Štěpán Kubíček, Martina Buřičová
spolupráce: Alena Richterová
půdní vestavba Korunní, Praha - Vinohrady
dokončeno 2018
interiér v realizaci
foto: Andrea Thiel Lhotáková
Nominace Archdaily award “Building of the year 2022”
Mateřská škola Jeseniova v Praze 3
architektonická soutěž 2021
autor: Štěpán Kubíček, Martina Buřičová
spolupráce: Alena Richterová
Přístavba základní školy Praha - Lipence
jednofázová užší soutěž o návrh 2022, 4-5..místo
autor: Štěpán Kubíček, Martina Buřičová
spolupráce: Anna reidlová, Tomáš Prokop
vizualizace: Dousek - Záborský
Společensko kulturní centrum “SOKEC” Hrušovany u Brna
soutěž 2017, 1.místo
v realizaci
autor: Štěpán Kubíček, Martina Buřičová, Jonáš Krýzl, Jan Novotný
spolupráce: Lenka Levíčková, Tereza Dejdarová, Václav Pošmourný
vizualizace: Miki Sluysar
interiér bytu Rezidence Kavčí Hory
realizace 04/2020
autor: Štěpán Kubíček, Martina Buřičová
foto: Andrea Thiel Lhotáková
bytový dům Humpolec
užší architektonická soutěž 2020
autor: Štěpán Kubíček, Martina Buřičová
vizualizace: Miki Slusar
nová mateřská a základní škola pro Dolní Měcholupy
architektonická soutěž 2020
autor: Štěpán Kubíček, Martina Buřičová
vizualizace: Miki Sluysar
objekt B, areál Pokovářská Praha 9 - Vysočany
realizace duben 2020
foto Andrea Thiel Lhotáková
Cena starosty městské části Praha 9 - za nejkvalitnější a nejprospěšnější soubory veřejných staveb ku prospěchu obščanů a návštěvníků městské části Praha 9 v letech 1992 - 2022 / za systematickou etapovou výstavbu a konverzi Areálu Podkovářská / Tomáš Portlík, starosta, 2022
Tři v jednom pro Libčice nad Vltavou - městský dům, radnice a náměstí
architektonická soutěž 2021 / užší soutěž
autor: Štěpán Kubíček, Martina Buřičová
objekt C, areál Podkovářská Praha 9 - Vysočany
(ne) dokončeno 2010, realizace stále pokračuje
foto: Andrea Thiel Lhotáková, Tomáš Novák
spolupráce: umění Michal Cimala
Grand Prix obce architektů - národní cena za architekturu 2011 v kategorii Rekonstrukce
Cena starosty městské části Praha 9 - za nejkvalitnější a nejprospěšnější soubory veřejných staveb ku prospěchu obščanů a návštěvníků městské části Praha 9 v letech 1992 - 2022 / za systematickou etapovou výstavbu a konverzi Areálu Podkovářská / Tomáš Portlík, starosta, 2022
spolkový dům Horažďovice
soutěž 2019 / II.kolo
autor: Štěpán Kubíček, Martina Buřičová, Lenka Levíčková
spolupráce: Oto Melter
vizualizace: Miki Sluysar
rekonstrukce a přístavba základní školy v Praze - Písnici
užší architektonická soutěž 2020
autor: Štěpán Kubíček, Martina Buřičová, Lenka Levíčková
vizualizace: monolot
rekonstrukce krematoria Ostrava
soutěž 2019
autor: Štěpán Kubíček, Martina Buřičová, Lenka Levíčková
spolupráce: Václav Pošmourný
vizualizace: Jan Krupička
objekt B, areál Pokovářská Praha 9 - Vysočany
vizualizace interiéru nástavby: Architektonické vizualizace Dousek - Zaborský
ostatní vizualizace: caraa
realizace 2020..
Cena starosty městské části Praha 9 - za nejkvalitnější a nejprospěšnější soubory veřejných staveb ku prospěchu obščanů a návštěvníků městské části Praha 9 v letech 1992 - 2022 / za systematickou etapovou výstavbu a konverzi Areálu Podkovářská / Tomáš Portlík, starosta, 2022
ateliér, areál Podkovářská Praha 9 - Vysočany
dokončeno 2011
spolupráce: grafika Radana Lencová, betonové schody Břetislav Eichler, DNA
foto: Andrea Thiel Lhotáková
Grand Prix obce architektů - národní cena za architekturu 2011 v kategorii Rekonstrukce
Cena starosty městské části Praha 9 - za nejkvalitnější a nejprospěšnější soubory veřejných staveb ku prospěchu obščanů a návštěvníků městské části Praha 9 v letech 1992 - 2022 / za systematickou etapovou výstavbu a konverzi Areálu Podkovářská / Tomáš Portlík, starosta, 2022
tribuna fotbalového hřiště T.J. Sokol Záryby
autor: Štěpán Kubíček, Jonáš Krýzl
ČESKÁ CENA ZA ARCHITEKTURU 2017 - nominace mezi finalisty
rodinný dům, Praha západ
projekt 2008, dokončeno 2014
foto: Andra Thiel Lhotáková
rodinný dům Struhařov
studie 2018, 2019
spolupráce: Oto Melter, Jan Krupička, Lenka Levíčková, Tereza Dejdarová, Jonáš Mikšovský
vesnický rodinný dům Praha - západ
dokončeno 2011
foto: Andrea Thiel Lhotáková
spolupráce: Lukáš Bruthans
interiér bytu Praha - Kavčí Hory
studie 2018, v realizaci
spolupráce: Tereza Dejdarová, Oto Melter, Lenka Levíčková
bytový dům Praha 6 - Staré Střešovice
studie 2008
objekt A, areál Podkovářská Praha 9 - Vysočany
dokončeno 2006
foto: Tomáš Novák
Cena starosty městské části Praha 9 - za nejkvalitnější a nejprospěšnější soubory veřejných staveb ku prospěchu obščanů a návštěvníků městské části Praha 9 v letech 1992 - 2022 / za systematickou etapovou výstavbu a konverzi Areálu Podkovářská / Tomáš Portlík, starosta, 2022
bytový dům Třeboň / startovní byty pro mladé rodiny
autor: Martina Buřičová, Lukáš Holub, Lubor Sladký
foto: Filip Šlapal
1.cena v soutěži “Startovní byty pro mladé rodiny, lokalita Třeboň, ČR” (společně s Likášem Holubem a Luborem Sladkým), 1999
Bydlení 2000 / AFB - odměna v kategorii nájemní domy, 2000
Nový domov 2001 / MMR ČR - Grand Prix v kategorii bytové domy / 2001
Presta Jižní Čechy - přehlídka stavebních realizací Jižních Čech v období 2000 - 2002 / Český svaz stavebních inženýrů, o.p. České Budějovice - čestné uznání v kategorii rodinné domy a bytové stavby / 2002
DESET Soutěžní přehlídka staveb realizovaných na základě výsledku architektonických soutěží organizovaných mezi lety 1992 a 2015 - VÝBĚR MEZI 10 NEJLEPŠÍCH STAVEB MEZI ROKY 1992 - 2002 / vyhlášeno ČKA 2022
rekonstrukce a dostavba filosofické fakulty Karlovy univerzity v Praze
soutěž 2016, 2.místo
autor: Štěpán Kubíček, Martina Buřičová, Jonáš Krýzl, Jan Novotný
rodinný dům CHKO Třeboňsko, Jižní Čechy
spolupráce: Ondřej Kramoliš, Zuzana Pízová
foto: Andrea Thiel Lhotáková
POROTHERM DŮM 2008 / vydavatelství Jaga Media – zvláštní cena
DŮM ROKU 2008 / vydavatelství Business Media CZ, časopis Můj dům – 2.cena v kategorii Individuální projekty
přestavba obecního úřadu na rekreační objekt v Černých Voděradech
realizace 2008
foto: Andrea Thiel Lhotáková
spolupráce: Ondřej Kramoliš, Zuzana Pízová
klub Techtle Mechtle, Praha - Vinohrady
dokončeno 2007
foto: Andrea Thiel Lhotáková, Tomáš Novák
nominace v soutěži GRAND PRIX - národní cena za architekturu 2008
rodinný dům Praha - Radotín
studie 2007, projekt 2008
vizualizace: Miroslav Hujer
Městský dům Dobříš
soutěž 2009